Off-Grid Self-Catering Holiday Accommodation nr. Presteigne
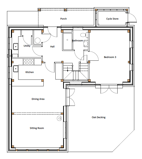
Entering through the hall the living space downstairs is a large, open plan, vaulted area encompassing a kitchen, dining room and living room with four picture windows framing fabulous views south over Presteigne and the Lugg Valley, to Hay Bluff and the Malverns.
The living room is furnished with two comfortable sofas, and a window seat running the length of the windows. A modern, thermostatically controlled wood burning stove provides ambiance.
The dining area, located between the kitchen and living area has an 8-place dining table. Double French doors open from the dining area onto a huge oak decking, furnished with teak tables and chairs, and affording the same extensive views as the living room.
The open-plan kitchen is constructed of oak and granite. It is well-equipped and fully fitted with dishwasher and fridge/freezer. There is a large range cooker - ideal for cooking meals for larger parties, as well as a butler’s sink and a wide range of cooking and baking equipment. The crockery is all supplied by Presteigne-based, Brixton Pottery
The cottage has one downstairs double bedroom with a kingside bed and French windows facing the dramatic view and leading directly onto the oak decking.
Next to the bedroom is a bathroom with a walk-in tiled shower, toilet and hand basin.
Leading off the entry hall is a utility room with a washing machine, boot rack and clothes drying racks.
All of the ground floor is accessible by wheelchair.

Ground floor plan.
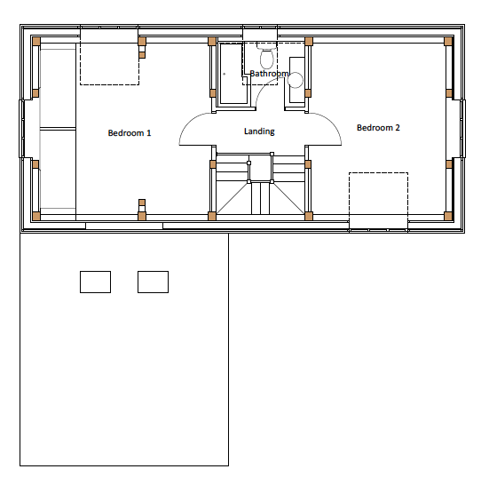
Upstairs you will find two vaulted oak beamed bedrooms and a bathroom.
One bedroom has a super-king size bed, which can be converted into two full size single beds upon request, and windows providing views to the south and east.
The other bedroom has two single beds set in an unusual hand made Norwegian style cupboard bed - a perfect hide away for children and adults alike! Sit up in bed and look out the shuttered window to the west and a view of Brecon Beacons beyond. There are two comfortable futon chairs in this room, a wonderful place to read a book or sit and enjoy the peace, but also capable of turning into single beds.
The upstairs bathroom serves both these rooms with a bath, shower, toilet and hand basin.

First floor plan.
Facilities and equipment:
- Gas under floor heating throughout the house, with a wood burning stove in the living room (wood included)
- Belling LPG range cooker with a double oven, grill and 8 gas hobs, fridge/freezer, dishwasher
- TV with Freeview and DVD
- WiFi
- Selection of books and games
- Washing machine and drying rack
- Bed linen and towels included.
- Off road parking
- Locked bike storage
- Deck area with teak tables and chairs, and a barbecue
- ¼ acre garden, with grass and mature trees, bordering pasture.
© 2020 The Parks Cottage, near Presteigne, LD8 2HD - luxury off grid Welsh Borders holiday cottage, sleeps 6 - 8 near Offa's Dyke, UK






















